
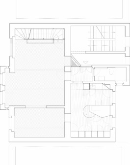
In a Wilhelminian style house in the centre of Cologne, two residential units were merged into one. The flat was restored to its origins. The old elements were retrieved and conserved. Concentrated interventions are integrated narratively into the well-proportioned rooms and become surprising moments through optical illusions via different surfaces. Different atmospheres are subtly created on the two floors. In addition to the restoration of the original elements, new situations and access points were created, which exhibit a moment of irritation and invite into new spatial worlds.














SWSTUDIO
| Spichernstrasse 59 | T +49 221 75959993 |
Program: Housing
Client: Private
Status: Built
Location: Cologne
Year: 2023
Photography: Tobias Wotton , Jan Voigt
Information

Program: Housing
Client: Private
Status: Built
Location: Cologne
Year: 2023
Phootgraphy: Tobias Wotton, jan Voigt
In a Wilhelminian style house in the centre of Cologne, two residential units were merged into one. The flat was restored to its origins. The old elements were retrieved and conserved. Concentrated interventions are integrated narratively into the well-proportioned rooms and become surprising moments through optical illusions via different surfaces. Different atmospheres are subtly created on the two floors. In addition to the restoration of the original elements, new situations and access points were created, which exhibit a moment of irritation and invite into new spatial worlds.













