
KooperativeGroßstadt is looking for current housing forms for approx. 100 residents* to be built in the newly developing district of Munich-Freiham.
A heterogeneous urban design places individual volumes with different storeys on the site, which reacts to the public area through a common basement and creates communal additional spaces. Along the avenues, appropriation-open, activated public areas are created. An enchanted wild garden in the building field interior with terrain modeling forms an intimate character for the closer neighborhood.
The clear efficient structure of the residential buildings creates opportunities for connecting and disconnecting spaces and allows for growing and shrinking apartment sizes.
All three buildings are typologically comparable with each other as school buildings, but each has specific and clearly distinguishable spatial ideas.




SWSTUDIO
| Spichernstrasse 59 | T +49 221 75959993 |
Program: Cooperative Housing
Client: Kooperation Großstadt
Status Competition 4th Prize
Location: Munich- Freiham
Year: 2019
Collaboration: Knüvener Architekturlandschaft,
Demo Working Group
Information
Frei Housing Competition/Close Project
Project Details

Program: Cultural Space
Client: Private
Status: Built
Location: Cologne
Year: 2022
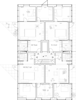
Kooperative Großstadt is looking for current housing forms for approx. 100 residents* to be built in the newly developing district of Munich-Freiham.
A heterogeneous urban design places individual volumes with different storeys on the site, which reacts to the public area through a common basement and creates communal additional spaces. Along the avenues, appropriation-open, activated public areas are created. An enchanted wild garden in the building field interior with terrain modeling forms an intimate character for the closer neighborhood.
The clear efficient structure of the residential buildings creates opportunities for connecting and disconnecting spaces and allows for growing and shrinking apartment sizes.
All three buildings are typologically comparable with each other as school buildings, but each has specific and clearly distinguishable spatial ideas.




