
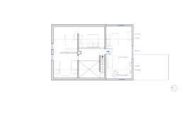
A typical half-timbered farmhouse in the Eifel is to meet the demands of today. The almost square floor plan with four equally sized rooms offers great flexibility of functions.The ground floor is opened up windmill-like from room to room, allowing views out to the outside in each case.The upper floor is accessed via a staircase and serves as a bedroom. The one-and-a-half-storey former hayloft is used in the upper part as a living room and bedroom with a generous view of the landscape. A workshop remains in the lower part, which is not heated as an energetic buffer.The dilapidated exterior walls were supported by a new brick interior wall and adequately insulated by the double wall construction with an air layer.A corrugated aluminium roof allows the hot summer sun to reflect, just as the metal allows the snow to slide off in the winter months. The simple construction preserves the ruinous old farmhouse with its no longer load-bearing half-timbering.







SWSTUDIO
| Spichernstrasse 59 | T +49 221 75959993 |
Program: Private Housing
Client: Private
Status: Under Construction
Location: Schmidt-Nideggen
Year: 2023
Information
Kriel House/Close Project
Project Details

Program: Cultural Space
Client: Private
Status: Built
Location: Cologne
Year: 2022
A typical half-timbered farmhouse in the Eifel is to meet the demands of today. The almost square floor plan with four equally sized rooms offers great flexibility of functions.The ground floor is opened up windmill-like from room to room, allowing views out to the outside in each case.The upper floor is accessed via a staircase and serves as a bedroom. The one-and-a-half-storey former hayloft is used in the upper part as a living room and bedroom with a generous view of the landscape. A workshop remains in the lower part, which is not heated as an energetic buffer.The dilapidated exterior walls were supported by a new brick interior wall and adequately insulated by the double wall construction with an air layer.A corrugated aluminium roof allows the hot summer sun to reflect, just as the metal allows the snow to slide off in the winter months. The simple construction preserves the ruinous old farmhouse with its no longer load-bearing half-timbering.



